Blue Architects

Kindergarten Fällanden Fällanden

Kindergarten Fällanden, Fällanden
Kindergarten Fällanden, Fällanden
Kindergarten Fällanden, Fällanden
Kindergarten Fällanden, Fällanden

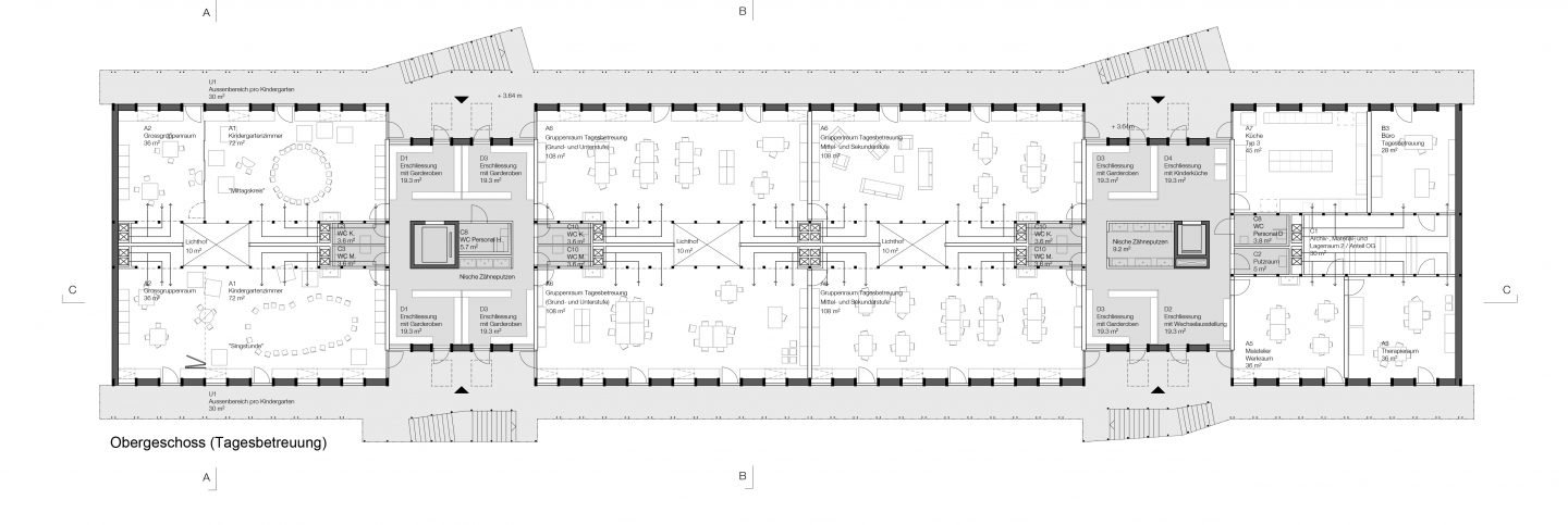
Der Neubau ist ein einladender Holzbau, der die 7 Kindergärten und 4 Horte in einem kompakten Volumen vereint. Die Erschliessung erfolgt dezentral über vorgelagerte Balkone, die von der japanischen Engawa (Zwischenzone) inspiriert sind. Dadurch wird eine lokale Identität geschaffen und das Gebäude hat grossen Bezug zu seiner Umgebung. Die Treppen reagieren auf die Zugänge des Areals und schaffen eine optimale Vernetzung. In der Gebäudemitte liegt eine funktionale Kernzone mit Lichthöfen, die neben optimaler Raumbelichtung und -belüftung auch Blickbeziehungen und Begegnungszonen ermöglicht. Durch die dezentrale Erschliessung wird auf interne Korridore und Treppenhäuser komplett verzichtet, was einerseits sehr kosteneffizient ist, andererseits aber auch dem Gebäude seinen offenen, vernetzenden Charakter verleiht. Der Neubau vereint acht Häuser in sich.