Blue Architects

Ried Neighborhood E Köniz

Ried Neighborhood E, Köniz
Ried Neighborhood E, Köniz
Ried Neighborhood E, Köniz
Ried Neighborhood E, Köniz
Ried Neighborhood E, Köniz
Ried Neighborhood E, Köniz
Ried Neighborhood E, Köniz

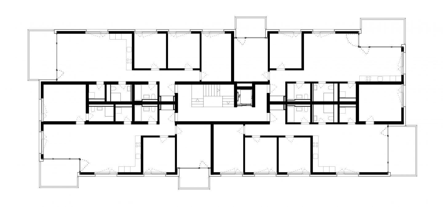
Die Landschaft ist das gestaltbildende Element der Siedlung. Der umfliessenden Grünraum wird durch die aufgefächerte Aufreihung der sieben Gebäude verstärkt. Die leichte Versetzung jedes einzelnen Gebäudes unterstützt die Durchlässigkeit und schafft vielseitige Bezüge in den Grünraum. Eine Unterteilung der Baukörper in Vor- und Rückseiten wird bewusst vermieden. Sämtliche Wohnungen sind zweiseitig orientiert und profitieren von unterschiedlichen Ausblicken in die Landschaft. Somit hat jeder Bewohner das Privileg am Grünen zu wohnen. Um den Grünraum als natürliche Landschaft erleben zu können, wird er weitgehend von infrastrukturellen Einrichtungen befreit, weshalb die Parkplätze in drei unterirdische Tiefgaragen verlegt wurden. Lediglich zwei gut integrierte Ein- und Ausfahrten führen auf die zukünftige Brüggbühlstrasse. Durch die Bildung eines Sockels wird der Gemeinschaftsbereich klar von den Wohngeschossen getrennt. Der Sockel enthaltet den prägnanten zurückversetzten Hauseingang, sowie sämtliche gemeinschaftlichen Einrichtungen wie Velo-, Wasch- und Gemeinschaftsräume. Die Adressierung jedes der sieben Gebäude erfolgt konsequent zur Ringstrasse. Im Inneren des Gebäudes verbindet die Rue Interieur den Eingangsbereich mit den von oben natürlich belichteten Treppenhäuser.