Blue Architects

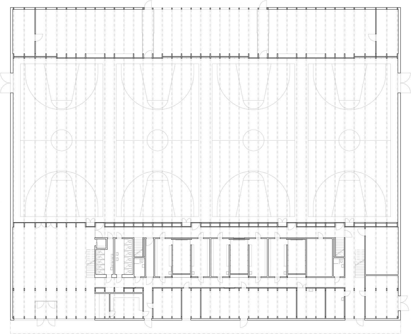
Sportzentrum Sargans Sargans

Sportzentrum Sargans, Sargans
Sportzentrum Sargans, Sargans
Sportzentrum Sargans, Sargans
Sportzentrum Sargans, Sargans
Sportzentrum Sargans, Sargans
Sportzentrum Sargans, Sargans
Sportzentrum Sargans, Sargans
Sportzentrum Sargans, Sargans
Sportzentrum Sargans, Sargans
Sportzentrum Sargans, Sargans
Sportzentrum Sargans, Sargans
Sportzentrum Sargans, Sargans
Sportzentrum Sargans, Sargans
Sportzentrum Sargans, Sargans

Angesichts der Erschöpfung natürlicher Ressourcen unserer Umwelt ist die Architektur besonders gefordert. Das Beispiel des Sportzentrums Sargans zeigt, dass nachhaltige Architektur auch gestalterisch herausragen kann. Die Verknüpfung von Tradition und Handwerk mit modernen Fertigungstechniken schafft eine vorwärtsdenkende und lokal verankerte Architektur, welche einen wichtigen Beitrag zum Diskurs über Architektur und Nachhaltigkeit leistet.

Insgesamt wurden 2500 m3 Rohholz verwendet, ein Volumen, das im Schweizer Wald in lediglich 3 Stunden 21 Minuten nachwächst. 63% des Holzes für die Sportanlage stammen aus Schweizer Wäldern, der Rest aus deutschen und österreichischen Baumbeständen. 94% des verwendeten Holzes wurden in der Schweiz vom Rohmaterial zu fertigen Produkten verarbeitet. Dies ist beachtlich, da in diesen Verarbeitungsprozessen der grösste Teil der ökonomischen Wertschöpfung stattfindet. Wir haben das an dem Beispiel der Brettschichtholzrahmen analysiert: Ein Kubikmeter Holz kostet im Sägewerk hundertsechzig Franken. Eine fertige Dreischichtplatte kostet pro Kubikmeter bereits neunhundert Franken, und der verleimte Holzträger schliesslich 1.400 Franken. Aus dieser Wertsteigerung vom Rundholz bis zu den fertigen Fabrikaten ergibt sich die beträchtliche lokale Wertschöpfung.