Blue Architects

Tanzhaus Zürich

Tanzhaus, Zürich
Tanzhaus, Zürich
Tanzhaus, Zürich
Tanzhaus, Zürich
Tanzhaus, Zürich
Tanzhaus, Zürich
Tanzhaus, Zürich
Tanzhaus, Zürich
Tanzhaus, Zürich
Tanzhaus, Zürich

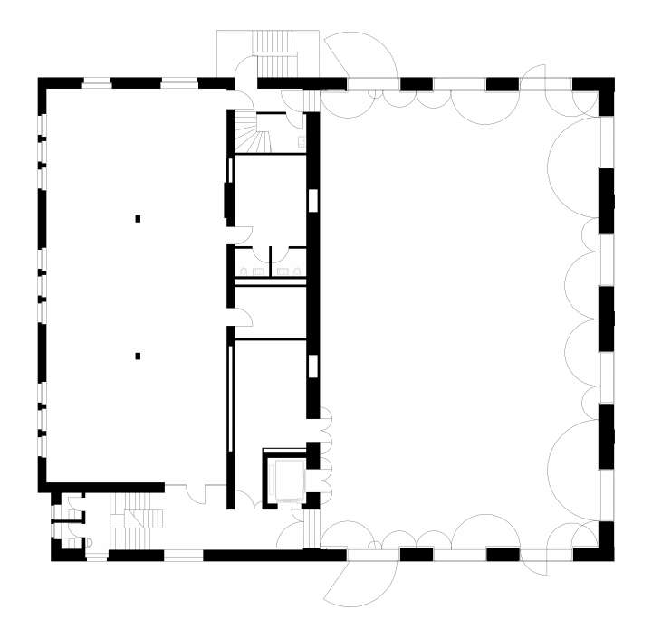
Das fünfstöckige Haus beherbergt neue und neuumgebaute Räume des Tanzhaus Zürich, eine renommierte und international engagierte Institution für zeitgenössischen Tanz. Herzstück des Umbaus ist der 400 m2 große und 11 Meter hohe Tanzsaal, der im 2. Obergeschoss liegt. Ein System faltbarer Läden erlaubt es, diesen Saal sowohl als hellen Proberaum mit Tageslicht wie auch als über Kunstlicht inszenierte Blackbox für Aufführungen zu nutzen. Der Saal wird von Betonträgern überspannt und mit zwei Betonhalbschalen ausgesteift. Für die Anfangszeiten des Betonbaus typisch, waren sie der Form von Holzträgern nachempfunden worden und geben Zeugnis von ersten Experimenten mit Betontragstrukturen in der Stadt Zürich. Sämtliche Eingriffe des Umbaus zielen darauf ab, die bestehende Qualität des Gebäudes zum Ausdruck zu bringen und direkt erfahrbar zu machen. Die Räume wurden freigelegt und gezielt dort verfeinert, wo es angemessen oder bautechnisch notwendig war. Wo immer möglich wurde mit großzügigen Fenstern eine intensive Beziehung zum Aussenraum geschaffen und Tageslicht in das Gebäudeinnere geführt.